Architecture & Organisation des espaces
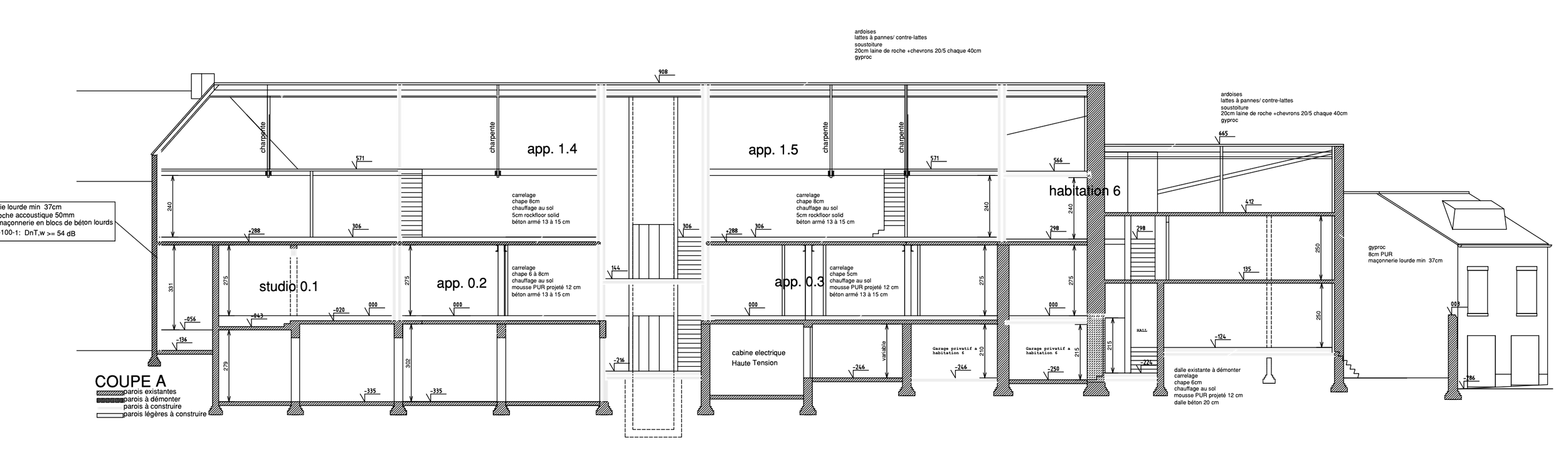
Cet ancien bâtiment industriel, entièrement réhabilité, se développe sur trois niveaux et accueille un ensemble résidentiel intimiste composé de six unités de logement.
La distribution des espaces a été pensée pour offrir confort, fonctionnalité et luminosité, tout en préservant le caractère architectural du lieu.
L’immeuble est desservi par un ascenseur central ainsi qu’une cage d’escalier, assurant un accès fluide et pratique à chaque niveau. Les volumes généreux et la structure existante ont permis de créer des appartements aux proportions harmonieuses, répartis entre le rez-de-chaussée, le premier étage et les combles aménagés.
Cette organisation verticale optimise la circulation et garantit à chaque logement indépendance, intimité et qualité de vie au sein d’un ensemble cohérent et soigneusement rénové.
